Huntington Beach, CA (15511 Edwards St)

Floorspace: 17,000 (sqft)
Latitude Longitude: 33.73543952, -118.0179572
- PTT Standard Layout (Oct. 6, 1979)
- PTT Early Cyberamic Replacements (1983)
- SPT 1980's Remodel Program (?)
- SPT 1990's Remodel Program (?)
- Phase 1 (1994) (?)
- Phase 2 (1997) (?)
- CEC 2000's Remodel Program (?)
- Phase 3 (2000) (?)
- 2020 COVID-19 Removals (?)
- Portrait / Shelf Stage (Oct. 6, 1979–?) (2-Wall)
- Chuck E.'s House Facade (?–?)
- 2-Stage (?–Sep. 21, 2025) (Oldest CEC location currently. Opened in October 1979 as the 5th Pizza Time Theatre with a Portrait Stage. Last store from the 1970's that is still open. One of last two 2-Stage's operating in California.)
Huntington Beach, CA (15511 Edwards St) is the fifth[10] Pizza Time Theatre, and the former Pizza Time Theatre Southern California District Office, opening on October 6th, 1979, and lasting to September 21, 2025.[9]
History
Pre-Opening
On December 4th, 1978, PTT would note that a store, set as the fourth location, would be opened in Southern California following the third store’s opening in March of 1979.
On January 18th, 1979, Nolan Bushnell mentioned multiple planned locations, including one in Los Angeles. While Huntington Beach is part of Orange County and not LA County, Pizza Time Theatre was likely just finding a location to fit the Southern California market.[1] On February 12th, Pizza Time Theatre would mention 12 restaurants planned to open in 1979, though not directly mentioning Huntington by name.[2]
The earliest record of the location beginning its plans is with the previous owner, Albertson’s Inc., granting Pizza Time Theatre to apply for an administrative review with the City of Huntington Beach to confirm if they could operate at the location. The earliest plans for the building would be made on March 22nd, 1979, and the review would be submitted on March 26th.[20]
On April 11th Nolan Bushnell and Gene Landrum would meet with the Huntington Beach Board of Zoning to discuss their previous submission of approval. The board noted that the plans did not meet the maximum required parking spaces as indicated by the available seating area. Gene would note this was not required as the game room portion was only used by patrons eating food at the esablishment and not for the general public, alongside the fact that only adults or children accompanying adults could enter the establishment. Various other concerns were discussed following zone coding. The board halted approval until the maximum parking space was once again fulfilled, multiple exterior areas being used by the prior tenant were set to be removed, and that clearance was made for Fire Department connections. The revised plans would be submitted by April 19th, with the project going forward.[20]
By May 18th PTT would hire C. & I. Construction Company to work on the building, and by the 29th Closson & Closson would be hired for landscaping.[20]
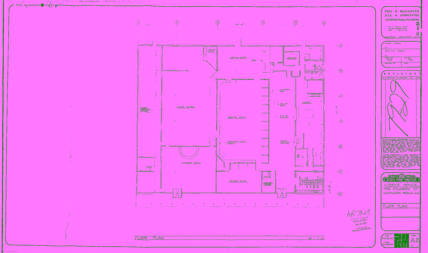
On July 1st, the first direct mention of a location in Huntington Beach would occur, with Nolan Bushnell saying: “We now have sufficient data from the prototypes… to validate the strength of our concept. Based on the idea’s workability and profitability, we’ve made a decision to move quickly into the Los Angeles basin. I perceive this first Southern California store as the forerunner of dozens more to open in that area.”. It would also note the location would be in the former Albetson’s Supermarket, seating 350, and also be the home of the Pizza Time Theatre Southern California District Office. The planned completion for construction would be set for July 15th of that year.[3] The location would be 17,000 sqft. [8]
On July 7th an ad would appear for an electrical technician for both the Huntington Beach and an unopened Santa Ana location.[5]
The latest known plans submitted for the building would be by September 7th, 1979.[20] The plans feature a fake “Ticket Booth” fixture near the entrance that was also seen at the Concord, CA (1975 Diamond Blvd) location. The same month Phil Stewart would join PTT as an installer of Cyberamics (and later named Cyberamics Field Services Product Specialist), with his first job being the installation at Huntington Beach.[22]
Opening
Huntington Beach would open on October 6th, 1979.[9] The location would have the third set of Cyberamics, alongside the first Helen Henny (Lounge). The store would also feature a 12x18ft concrete pad with six bumper cars as an attraction.[7]
On October 9th, the C.& I. Construction Company would advertise their help in the construction of Huntington Beach.[6] On November 28th, an interview with Nolan Bushnell about Pizza Time Theatre and its new location would have him note that he “…samples all the wares and makes sure that each of his theatres is producing the best possible food…”, also noting that by this point seven stores had opened (despite only 6 known to be open).[10]
A survey for the coin boxes of various locations would be performed in late 1979, with PTT noticing both the Helen Henny (Lounge) and the San Jose, CA (1371 Kooser Rd) location’s Kooser Dolli Dimples (Animatronic) having a 1:2 quarter to token ratio, unlike the usual arcades which had a 1:6 ratio. PTT believed this showed adults were activating the shows more than kids.[14] Around that time, the location would also note hosting 20 British editors of fast food and restaurant publications. The location would also already have tours by elementary schools, Cub Scout Packs, and Girl Scout Troops.[14]
1980’s
In February of 1980 the store would participate in the Photo Promotion campaign, snapping 1,450 pictures. The total snapped across the participating stores was 6,100. Huntington would take the lead out of the total. In May of 1980 it would be noted that the store would soon be recieving Artie Antlers. Dolli is never stated directly as being at the location, but was likely installed beforehand. [15] Around this time the store would also recieve its beer and wine license, holding a provate employee celebration for the occasion. The store had also recieved at least one tour a day for the prior two months of business.[15]
In early 1981, the store, La Habra, CA (901 Harbor Blvd), Fullerton, CA (1841 W Orangethorpe Ave), and Garden Grove, CA (11889 Valley View St) would participate in the “Pizza Leagues” where softball players at each store would compete. These four stores and the Long Beach, CA (4706 Los Coyotes Diagonal) location would alsp sponsor California Surfs soccer team’s MVP award.[16] On June 22nd, 1981, a paper going over the store would note a few of the current attractions at the location, the use of Madame Oink as the current Guest Star, the location having a Jasper’s General Store, and that the location was doing well with over 90 employees. Nolan Bushnell would comment that the store was the best in the chain, staying busy every night of the week.[8]
During the first two weeks of August 1981 the store alongside many others would hold the 1981 Starcade Tournament (Event) to find participants for the upcoming Starcade TV show pilot.[17] Just after the contests, from August 24th to September 3rd, all stores would participate in the 1981 Play Asteroids and Benefit Muscular Dystrophy (Event).[26]
By late 1981 PTT would note the store as “doing a booming business in tours, community involvements, and birthdays parties.”. They would note their walkaround appearing in the Octoberfest aand Anaheim Halloween parades, which were televised, and that soon would be appearing in the local Santa Claus Lane parade.[21]
In late 1982 multiple employees at the store would win the “Chuck E.’s Champions Suggestive Selling” program, being Brian Dixon and Louise Griffith.[22]
In late March of 1983, the store would hold a fundraiser for the Paul Yorde Day Care Center. The kids of the center would be there for the day during the event.[11]
In the early morning of April 1st, 1985, the store would be have around $5,000 in cash stolen. Two gunmen kidnapped a PTT employee who was at the back of a Bank of America building, forcing them to drive back to the restaurant and let them in before opening. The victim was tied up and beaten by the gunmen, alongside a .45-caliber handgun being fired near the head of another employee as a warning. The men would have the phone lines cut before fleeing. It is unclear if they were ever caught.[12]
On September 14th, 1985, the Huntington Beach Jaycees would hold a children’s fingerprinting session to raise awareness on lost children.[23]
1990’s - 2010’s
Some time between 1987 to 1991 (likely within the range of 1989-1990), the store would convert from a Portrait / Shelf Stage to Chuck E.'s House Facade.[28][29] Some time in the 1990’s the store would recieve a 2-Stage, the SPT 1990's Remodel Program, and a drop ceiling. The stage would also be moved from the left showroom wall, where it previously was as the C-Stage, to the back wall. It is unclear if this happened before, during, or after the 2-Stage conversion. Some time after 2003 the store would also recieve the CEC 2000's Remodel Program.[34]
2020’s & Closure
On November 7th, 2023, CEC Corporate would need a set of curtains to use for the upcoming grand reopening of the Northridge, CA (8425 Reseda Blvd) store as the first of the CEC Legacy Locations. As Huntington was closeby and had working curtains, they were removed from the store and reinstalled at Northridge on November 7th, 2023.
On February 18th, 2024, a conversation between a fan and an employee of the store would reveal the store’s plans to relocate to a new building. This would be due to the owners not wanting to renew the release, deciding to move the store to a nearby fabric store. The store would initially be set to close mid to late 2024. On March 12th bidding for contractors for the new location would commence on Parkway, with another round happening on October 4th, 2024. Huntington would continue operating past its initial plans for closure.
The store would first be found in construction on January 5th, 2025, being Huntington Beach, CA (15031 Goldenwest St), a former Joann fabric store. Rumors would also set the new location’s opening for August of that year.[32] Huntington would recieve the Bella's Snack Shop extension sometime between June 14th and June 27th, 2025.[30][31] The old store would finally close on September 21, 2025, with its relocation opening on September 25th, 2025.[33]
Animatronics
| Character | Operation | Serial | Status |
|---|---|---|---|
| Chuck E. Cheese (Cyberamic) | Oct. 6, 1979 - Sep. 21, 2025 | N/A | In storage at the SPT Warehouse. |
| Warblettes (Cyberamic) | Oct. 6, 1979 - ? | N/A | Unknown |
| Guest Star / Helen Henny (Cyberamic) | Oct. 6, 1979 - Sep. 21, 2025 | N/A | In storage at the SPT Warehouse. |
| Mr. Munch (Cyberamic) | Oct. 6, 1979 - Sep. 21, 2025 | N/A | In storage at the SPT Warehouse. |
| Pasqually (Cyberamic) | Oct. 6, 1979 - Sep. 21, 2025 | N/A | In storage at the SPT Warehouse. |
| Jasper T. Jowls (Cyberamic) | Oct. 6, 1979 - Sep. 21, 2025 | N/A | In storage at the SPT Warehouse. |
| Dolli Dimples (Cyberamic) | Oct. 6, 1979 - ? | N/A | Unknown |
| Artie Antlers (Cyberamic) | 1980 - ? | N/A | Unknown |
| Applause Board (Cyberamic) | Oct. 6, 1979 - ? | N/A | Unknown |
| Drum Board (Cyberamic) | Oct. 6, 1979 - 1985 | N/A | Unknown |
| Flag Wavers (Cyberamic) | Oct. 6, 1979 - 1985 | N/A | Unknown |
| Wink (Animatronic) | ? - Sep. 21, 2025 | N/A | In storage at the SPT Warehouse. |
| Helen Henny (Lounge) | Oct. 6, 1979 - ? | N/A | Unknown |
Attractions
| Attraction | Operation | Notes |
|---|---|---|
| Depth Charge | ? - ? | |
| Star Hawk | ? - ? | |
| Cheese Crawl | Oct. 6, 1979 - ? | |
| Warlords | ? - ? | |
| Skee Ball | ? - ? | 12 Lanes |
| Bumper Cars | Oct. 6, 1979 - ? | 12x18ft concrete pad with six bumper cars. |
| Ball Pit | ? - ? | |
| Jasper's General Store | ? - ? | Mentioned June 22nd, 1981. |
| Bella's Snack Bar | Jun. 2025 - Sep. 21, 2025 |
References
- https://www.newspapers.com/newspage/841084118/
- https://www.newspapers.com/article/oakland-tribune/82325882/
- https://archive.org/details/play-meter-update-volume-5-number-12-july-1st-1979/Play%20Meter%20Update%20-%20Volume%205%2C%20Number%2012%20-%20July%201st%201979/page/n1/mode/2up?q=pizza+time+theatre
- https://showbizpizza.com/info/promo/ptt/ptt_draw-win-eat.pdf
- https://www.newspapers.com/article/the-los-angeles-times/21696884/
- https://www.newspapers.com/article/the-los-angeles-times-potential-huntingt/181898791/
- https://archive.org/details/the-pizza-times-newsletters/1979%20The%20Pizza%20Times%201-1/page/n1/mode/2up?q=huntington
- https://archive.newportbeachlibrary.org/NBPL/DocView.aspx?id=1326071&dbid=0&repo=CNB&searchid=f20e6d2a-af85-4f89-9ecc-0a5da1ce2bbf
- Source has currently been lost, was previously opening day article.
- https://archive.newportbeachlibrary.org/NBPL/DocView.aspx?id=1235797&dbid=0&repo=CNB&searchid=4dbc461d-bd8e-4523-b558-8fa240af1495
- https://archive.newportbeachlibrary.org/NBPL/DocView.aspx?id=1326749&dbid=0&repo=CNB&searchid=4dbc461d-bd8e-4523-b558-8fa240af1495
- https://archive.newportbeachlibrary.org/NBPL/DocView.aspx?id=1295418&dbid=0&repo=CNB&searchid=4dbc461d-bd8e-4523-b558-8fa240af1495
- https://www.newspapers.com/article/the-los-angeles-times-chuck-e-cheeses/169475752/
- https://archive.org/details/the-pizza-times-newsletters/1979%20The%20Pizza%20Times%201-1/page/n1/mode/2up?q=huntington
- https://archive.org/details/the-pizza-times-newsletters/1980%20The%20Pizza%20Times%202-1/page/n1/mode/2up?q=huntington
- https://archive.org/details/the-pizza-times-newsletters/1981%20The%20Pizza%20Times%201-1/page/n3/mode/2up?q=huntington
- https://archive.org/details/the-pizza-times-newsletters/1981%20The%20Pizza%20Times%201-2/page/n3/mode/2up?q=huntington
- https://starcade.tv/pilotx/pilot.htm
- https://archive.org/download/thepizzatimeshow/ChuckECheese.mp4
- https://archive.org/details/huntington-beach-kooser-rd-building-plans
- https://archive.org/details/the-pizza-times-newsletters/1981%20The%20Pizza%20Times%201-3/page/n5/mode/2up?q=beach
- https://archive.org/details/the-pizza-times-newsletters/1982%20The%20Pizza%20Times%202-3/page/n1/mode/2up?q=beach
- https://archive.newportbeachlibrary.org/NBPL/DocView.aspx?id=1295578&dbid=0&repo=CNB&searchid=b162c15a-4da6-4acd-b237-0bf881521030
- https://www.newspapers.com/article/the-los-angeles-times/36450843/
- https://www.newspapers.com/article/the-los-angeles-times-numerous-la-oc/86817858/
- https://www.newspapers.com/article/the-los-angeles-times/183696156/
- https://www.newspapers.com/article/the-los-angeles-times/136412202/
- https://youtu.be/wihG5BTS9L8
- https://youtu.be/Yy6CescyNYQ
- https://youtu.be/9Iq_Sju1oaY
- https://youtu.be/MqKRYd3RwjU
- https://www.youtube.com/watch?v=MqKRYd3RwjU
- https://youtu.be/wM_9JQxtTig
- https://youtu.be/InOAJ84rjVM
- https://youtu.be/36de3wzTTNk
Last updated on: Jan. 10, 2026
Search for: "Huntington Beach, CA (15511 Edwards St)" on the forums!









